Friday, November 27, 2020

Highland City Council Agenda Preview for Dec 1, 2020

cleaning-staff-clipart-md

Key items on the agenda include:

  • Two code cleanup and clarification items dealing with resolving issues with public trees and identifying locations where people can engage in expressive activities such as marches, parades, and protests.
  • The council will look at a code change to limit the ability of protesters to trap or harass people as they enter, exit, and use their private homes (this is not constitutionally protected conduct) without unduly limiting free speech activities.
  • Burt Brothers is seeking a conditional use permit to build a lube center to the east of their existing facility.

This meeting will be held at city hall but there will be limited space because of distancing requirements. We will also stream it on our YouTube channel (click here to watch).  Note, individuals, especially those in a high-risk category, are strongly encouraged to participate in the meeting virtually!

You can find an abbreviated meeting agenda together with my thoughts below. The complete agenda (86 pages) which includes the staff reports associated with each item can be accessed by clicking here.


Highland City Council Agenda
Tuesday, December 1, 2020 at 7:00 PM council meeting
Virtual Participation


City Council Meeting 7:00 PM
The time listed at the end of agenda items is my guess as to the start time of this item. Note I am typically optimistic in my time estimates.

  1. UNSCHEDULED PUBLIC APPEARANCES 7:05
    Time has been set aside for the public to express their ideas, concerns, and comments. Comments are limited to 3 minutes.

  2. PRESENTATIONS 7:15
    1. Highland City Youth Council – City Youth Council Member

  3. CONSENT ITEMS  7:25
    Items on the consent agenda are of a routine nature or have been previously studied by the City Council. They are intended to be acted upon in one motion. Council members may pull items from consent if they would like them considered separately.
    1. Purchase Contract for a Front End Loader Administrative
      The City Council will consider a purchase contract to replace the front end loader in our streets department and authorize the Mayor or City Administrator and City Recorder to execute the necessary contracts for the purchase.

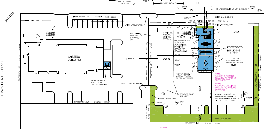
  4. CONDITIONAL USE PERMIT AND SITE PLAN APPROVAL: AUTOMOTIVE LUBE FACILITY (SP-20-03 AND CU-20-02) Administrative. 7:35
    The City Council will hold a public meeting to consider a request by Burt Brothers for approval of a Site Plan and Conditional Use Permit for a Lube Center located approximately at 10908 North Town Center Blvd.

    2020-12-01 Lube-Center
  5. ORDINANCE 2020-33: AMENDING CHAPTER 12.02 FREE EXPRESSION REGULATION AND RESOLUTION 2020-33: DESIGNATION OF AREAS FOR LIMITED USE OF EXPRESSIVE ACTIVITIES Legislative. 8:00
    State law requires cities to create a permitting process to grant people exceptions from regulations on impeding traffic. Essentially, the city must have a method by which people can apply for an exception that permits them to protest, march, parade, or engage in other expressive activities that would be prohibited as an obstruction of traffic. The purpose of the proposed amendment and resolution is to have the City Council formally designate certain areas that can be used on a limited basis for expressive activities that are not otherwise available or open for public, expressive activity. The proposed area is the streets surrounding the splash pad, city offices, public safety building (police station). Recommended conditions of use include:

    1. No more than two events in the same area per day.
    2. No overlapping events in the same area.
    3. No events from 7-9 AM, 4-6 PM, or after 10 PM.
    4. No event to last within a specific area for more than 2 hours
  6. ORDINANCE 2020-34: MUNICIPAL CODE AMENDMENT PROHIBITING TARGETED RESIDENTIAL PICKETING.  Administrative. 8:20
    The purpose of this ordinance is to limit the ability to trap or harass people as they enter, exit, and use their private homes. It does so through preventing people from picketing within 100 feet of the targeted residence. While we do not wish to limit people’s ability to speak, protest, march, and otherwise express themselves in traditional ways, there is a significant risk of unlawful harassment, intimidation, or obstruction of accessing a personal, private residence, which is not constitutionally protected conduct. Note, I support this code amendment. There have been a number of incidences this year including one in Cedar Hills that became dangerous and needed police involvement where the proposed amendment would have mitigated the danger.

  7. ORDINANCE 2020-35: AMENDING CHAPTER 2.36 COMMUNITY TREES Legislative 8:45
    Highland City Municipal Code, Title 2, Chapter 36 governs how the City forester, City
    staff, and City residents can plant, maintain, modify, or remove public trees within the
    City. These include trees planted in parks and open spaces, parkways, and other publicly owned spaces. As currently adopted, the code is contradictory regarding who has authority to make decisions regarding public trees. The code points to the city forester, the Parks, Trails, and Tree Commission, the City zoning administrator, and the City Council as having overlapping authority over public trees. The proposed changes eliminates the contradictions and clarifies the lines of authority.
  8. CONSTRUCTION CONTRACT: RECONSTRUCTION OF CULINARY WELL HOUSE #3 Administrative 9:00
    Culinary Well #3 is located on the southwest corner of 10400 North and 6400 West. The structure housing the well was constructed in the 1970s. The building provides very poor ventilation for the well motor and the electrical is in need of replacement. This project has been planned for years as part of the Culinary Water Capital Projects and is funded for this fiscal year with a budget of $475,075. Vancon’s bid of $339,335 was the lowest of 6 bids for the project.

  9. PROPOSAL APPROVAL: 2021 UTILITY RATE STUDY UPDATE Administrative 9:15
    The City Council will consider a request to approve the proposal from Lewis, Young, Robertson, and Burningham, Inc. (LYRB) for the preparation of the 2021 Utility Rate Study Update for the for the amount of $17,150 and authorize the Mayor or City Administrator and City Clerk to execute the necessary contract documents for the project.  I support this update to our fee study. We want to ensure that we are where we need to be to cover required costs. It is possible that the study will recommend that different fees be adjusted up or down.

  10. MAYOR/COUNCIL AND STAFF COMMUNICATION ITEMS 9:30

    1. Park Maintenance Building
    2. 2021 January-April Workload
    3. Future Meetings
      • December 8, Planning Commission Meeting, 7:00 pm City Hall
      • January 5, City Council Meeting, 7:00 pm, City Hall
      • January 19, City Council Meeting, 7:00 pm, City Hall
      • January 26, Planning Commission Meeting, 7:00 pm, City Hall
  11. CLOSED SESSION 10:45
    The Highland City Council may temporarily recess the City Council meeting to convene in a closed session to discuss pending or reasonably imminent litigation and the character, professional competence, or physical or mental health of an individual, as provided by Utah Code Annotated §52-4-205.

ADJOURNMENT

No comments:

Post a Comment

Thanks for taking the time to share your thoughts regarding this post.