Saturday, January 30, 2021

Highland City Council Agenda Preview for Feb 2, 2021

2021-02-02 Mitchell Hollow Park

We have a full agenda for the upcoming council meeting. Key agenda items include:

  • Updated site plan for the commercial zone NW of the Alpine Hwy/Timpanogos Hwy intersection
  • Office building proposal on property located just north of Burt Brothers
  • Preliminary Plat approval for Ten Seven Hundred (formerly Apple Creek) located south of Ace Hardware and Alpine Credit Union
  • Presentation of draft long-term trail maintenance plan
  • Discussion of Mountain Ridge Park phasing options

If you missed the previous council meeting here is light-hearted synopsis of it by Utah’s Highlander that includes a brief appearance by Harrison Ford/Hans Solo/Indiana Jones.

This meeting will be held at city hall but there will be limited space because of distancing requirements. We will also stream it on our YouTube channel (click here to watch).  Note, individuals, especially those in a high-risk category, are strongly encouraged to participate in the meeting virtually!

You can find an abbreviated meeting agenda together with my thoughts below. The complete agenda (120 pages) which includes the staff reports associated with each item can be accessed by clicking here.


Highland City Council Agenda
Tuesday, February 2nd at 7:00 PM council meeting
Virtual Participation


City Council Meeting 7:00 PM
The time listed at the end of agenda items is my guess as to the start time of this item. Note I am typically optimistic in my time estimates.

  1. UNSCHEDULED PUBLIC APPEARANCES 7:05 PM actual 7:03 PM
    Time has been set aside for the public to express their ideas, concerns, and comments. Comments are limited to 3 minutes.

  2. CONSENT ITEMS  7:20 PM actual 7:04 PM
    Items on the consent agenda are of a routine nature or have been previously studied by the City Council. They are intended to be acted upon in one motion. Council members may pull items from consent if they would like them considered separately.
    1. Approval of Council Meeting Minutes for Jan. 4, 2021  Administrative
    2. Minor Subdivision: Sunset Mountain Plat Administrative
      The City Council will consider a request by Berg Civil Engineering for plat approval of a minor subdivision, Sunset Mountain Plat E, a 1-lot subdivision. The property is located at located at approximately 11235 N Highland Blvd (west side of Highland Blvd just south of the new church).

  3. PUBLIC HEARING/ORDINANCE: TEXT AMENDMENT – PERMITTED USES IN CR ZONE Legislative  7:30 PM actual 7:06 PM
    MNG Management LLC is requesting that the council amend the permitted uses in the CR  zone as found in our development code (Section 3-4351) to include:
    • Nail salons
    • Shipping, mailing, pickup and return centers not exceeding 2,500 sq. ft.
    • General retail not otherwise prohibited
    • General office use
    The planning commission reviewed the request and unanimously approved it and I support the action as well. MNG owns property in Highland Marketplace (see below)
    2021-02-02 CR Zone
  4. SITE/ARCHITECTURAL PLAN APPROVAL: HIGHLAND MARKETPLACE PHASE 2 Administrative (45 minutes) 7:45 PM actual 7:23 PM
    The City Council will consider a request by MNG Management LLC for master site approval for five (5) commercial buildings and architectural approval for the retail building located at northeast corner of Alpine Highway (SR74) and Timpanogos Highway (SR92).
    image
    2021-02-02 Marketplace Site Layout
    2021-02-02 Marketplace Retail Elevations
    This was reviewed by the planning commission and they unanimously voted to recommend approval of the updated plan.

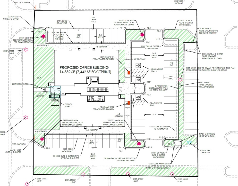
  5. SITE PLAN: LONE PEAK VILLAGE OFFICE 2 Administrative 8:05 PM actual 7:39 PM
    The City Council will consider a request by Daniel Schmidt on behalf of WPI Enterprises, Inc., for approval of a Site Plan for a 14,882 square foot 2-story office
    building with a building footprint of 7,442 square feet. The building will be located just north of Burt Brothers. The planning commission voted unanimously to recommend approval.
    2021-02-02 Lone Peak Office Site Plan
    2021-02-02 Lone Peak Office 3D

  6. PRELIMINARY PLAT: TEN SEVEN HUNDRED (PREVIOUSLY APPLE CREEK) Administrative 8:20 PM actual 7:50 PM
    The City Council will consider a request by McKay Christensen for Preliminary Plat approval of Ten Seven Hundred, a proposed 42-lot attached single family and a two-lot commercial subdivision located on 5.84 acres north and west of UCCU and south of Ace Hardware and the Alpine Credit Union. The planning commission voted unanimously to recommend approval of the preliminary plat.
    2021-02-02 TenSevenHundred Prelim Plat

  7. PURCHASE AND TWO CONSTRUCTION CONTRACTS: KITCHEN COUNTERTOP REPLACEMENT, DISHWASHER REPLACEMENT, AND ADDITIONAL ACCESS CONTROL DOOR FOR THE HIGHLAND FIRE STATION Administrative 8:45 PM actual 7:59 PM
    The total cost of these items is $8,048.50 - solid surface countertops $3,500.50, 2 dishwashers $1,398, adding access control to an additional room $3,150.

  8. ORDINANCE: REPEALING SECTION 4.12.050 WATER ADVISORY BOARD OF THE HIGHLAND CITY MUNICIPAL CODE Legislative 9:00 PM actual 8:05 PM
    The Highland City Water Advisory board was established in 2004 in conjunction with the city assuming responsibility for the culinary water of Highland City (click here for an article about the water company) which was formerly provided by the Highland Water Company. Sixteen years later the city has a staff that has managed both the culinary and pressurized irrigation system well. When needed, we bring in outside experts to advise us on complex issues and assist us in updating facilities plans. The capital and fiscal plans of the original water company have been updated multiple times during the 16 years.

    Over the last 3 years I’ve had multiple discussions with staff about the efficacy of the water advisory board. I’ve spoken with each board member and the staff who attend the quarterly meeting about whether board has run its course. All three staff members plus 5 out of 7 of the board members believe this to be true.
    In reviewing minutes of the previous 3 years of board meeting it is clear that staff does share valuable information with the board and there are interesting discussions which follow and board members have done research on items such as xeriscaping, park strips, and sidewalks. That said, the board, as a whole has, not significantly influenced policy decisions of the council in recent years.

    In my view the  Water Advisory Board has accomplished it purpose. The Highland Water Company was successfully incorporated into the city, our water drinking still comes to our homes directly from the ground with no chemical additives, and our culinary water rates are the lowest in N. Utah County. Those who have served on the board and helped make this happen deserve our thanks for a job well done.

  9. PRESENTATION/DISCUSSION: TRAIL MAINTENANCE PLAN – Todd Trane, City Engineer 9:15 PM actual 8:15 PM
    Staff will present to council the 1st draft of a long term trail maintenance plan. Residents value our trails but have expressed a desire that the city do a better job of maintaining them. The council and I agree that we need to do better. A long term maintenance plan (similar to our  road plan) is one of the keys to ensuring this occurs.

  10. PRESENTATION/DISCUSSION: MOUNTAIN RIDGE PARK PLAN AND BUDGET Erin Wells, Assistant City Administrator 9:35 PM actual 8:51 PM
    Staff will update us on options for developing Mountain Ridge Park. We do not have the capital funds to develop the park all at once so it will need to be phased. No final decisions will be made.

  11. MAYOR/COUNCIL AND STAFF COMMUNICATION ITEMS 10:00 PM actual 9:27 PM

    1. Budget Calendar – Tyler Bahr, Finance Director
    2. Future Meetings
      • February 10, Lone Peak Public Safety, 7:30 am, City Hall
      • February 16, City Council Meeting, 7:00 pm, City Hall
      • February 23, City Council Meeting, 7:00 pm, City Hall
      • March 2, City Council Meeting, 7:00 pm, City Hall
      • March 10, Lone Peak Public Safety Board Meeting, 7:30 am, City Hall
      • March 16, City Council Meeting, 7:00 pm, City Hall
      • March 23, Planning Commission Meeting, 7:00 pm, City Hall
  12. CLOSED SESSION 10:10 PM actual 9:55 PM
    The Highland City Council may temporarily recess the City Council meeting to convene in a closed session to discuss the sale of real property, as provided by Utah Code Annotated §52-4-205

ADJOURNMENT

No comments:

Post a Comment

Thanks for taking the time to share your thoughts regarding this post.